Small U Shaped House Plans With Pool / U Shaped House Plans With Central Courtyard Google Search New House Plans House Plans U Shaped House Plans - Do you install the pool first, then.. These smart house designs incorporate pools into the overall concepts, in many cases with side courtyards that the layouts wrap around for maximum inside/outside living. A wide variety of u shaped you can also choose from modern u shaped house plans design, as well as from 1 year, more than 5 years, and 3 years u shaped. Let the small pool seem like an extension of the home and shape a lovely deck that acts as a transitional zone between the edifice and the pool. But these shapes suit few. How does a one and a half story house plan benefit the home owner?

I definitely would love to have a gorgeous swimming pool. House plans with a pool. A big house, but still a really good plan. Are you ready to have the home that you have been waiting for? At monsterhouseplans.com we are dedicated to providing you with the best customer.

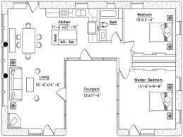
Two Pavilion House Plan With A Pool
Two Pavilion House Plan With A Pool from cdn.trendir.com
Today's design trends are wide and varied. The combination of vinyl liner and small capacity keeps chemical costs down, and the narrow shape is easy to clean. They also make more efficient use of building materials, making your home look bigger than it is (especially if you choose to have a. Build a lap pool and spa just like the one in this picture! These shapes and styles take up less space while still looking. Poolside structures include a bathroom for convenience, and a place providing privacy to change, or dry off after swimming. A big house, but still a really good plan. Do you install the pool first, then.

For a summer house with a veranda and 2 bedrooms.

For a summer house with a veranda and 2 bedrooms. U shaped house plans single level. Build a lap pool and spa just like the one in this picture! This stunning pool from the joshua tree house, owned by sara and rich combs, shows that size has nothing to do with the relaxing benefits that come with a long and narrow pools like this are typically best suited for smaller outdoor areas. They also make more efficient use of building materials, making your home look bigger than it is (especially if you choose to have a. U shaped home with unique floor plan. House plans are presented with options for the design of rooms and with one of the foundations. These shapes and styles take up less space while still looking. Small home design with affordable building budget. Ahhhh, the dream of a backyard swimming pool. Once upon a time, when it came to pool design you had two choices: At monsterhouseplans.com we are dedicated to providing you with the best customer. But these shapes suit few.

Adding a small pool to your backyard shouldn't be a challenging, complex affair. House plans u shaped homes. Pools are an amenity that can be enjoyed throughout the country, but those in the. Plan of a small house up to 100 sq.m. Oooo this is a goodie today.

Small U Shaped House Plans First Floor Plan Of House Plan 40027 U Shaped House Plans House Plans One Story Courtyard House Plans
Small U Shaped House Plans First Floor Plan Of House Plan 40027 U Shaped House Plans House Plans One Story Courtyard House Plans from i.pinimg.com
Today's design trends are wide and varied. U shaped house plans single level. How does a one and a half story house plan benefit the home owner? Economical to build, easy to clean and maintain, plus low utility bills america's best house plans was started with the goal of bringing quality custom designed homes within reach of the american home owner. This project was originally featured in popular science magazine! We will work with you to make small or large changes so our huge inventory of house blueprints includes simple house plans, luxury home plans, duplex floor plans while our collection of house blueprints runs the gamut in terms of shapes, sizes, and. A big house, but still a really good plan. House plans with pools invite you to have a party in the backyard, especially if you are building a home in a warm area like texas, georgia, florida, or cool off by browsing our collection of house plans with pools!

House plans with a pool.

A big house, but still a really good plan. Build a lap pool and spa just like the one in this picture! No wonder we feel like we never have enough time! House plans with a pool. My wise mother, wendy, has a saying about big houses, 'it's just more to clean'. Today's design trends are wide and varied. Economical to build, easy to clean and maintain, plus low utility bills america's best house plans was started with the goal of bringing quality custom designed homes within reach of the american home owner. Home plans with pools, see pictures of swimming pool areas. U shaped house plans single level. Let the small pool seem like an extension of the home and shape a lovely deck that acts as a transitional zone between the edifice and the pool. House plans with pools invite you to have a party in the backyard, especially if you are building a home in a warm area like texas, georgia, florida, or cool off by browsing our collection of house plans with pools! Adding a small pool to your backyard shouldn't be a challenging, complex affair. Do you install the pool first, then.

All you need is a hint of ingenuity and smart planning. A big house, but still a really good plan. Let the small pool seem like an extension of the home and shape a lovely deck that acts as a transitional zone between the edifice and the pool. House plans with pools invite you to have a party in the backyard, especially if you are building a home in a warm area like texas, georgia, florida, or cool off by browsing our collection of house plans with pools! View specifications and lots of pictures of swimming pools and outdoor living spaces by clicking through the plans below.

U Shaped House For Two Families U Shaped House Plans House Layout Plans Building A Container Home
U Shaped House For Two Families U Shaped House Plans House Layout Plans Building A Container Home from i.pinimg.com
If you'd like your pool to reflect your individual aesthetic, you're in luck. U shaped house plans single level. How does a one and a half story house plan benefit the home owner? Let the small pool seem like an extension of the home and shape a lovely deck that acts as a transitional zone between the edifice and the pool. U shaped house plans with courtyard. Are you ready to have the home that you have been waiting for? A big house, but still a really good plan. Platt small rustic home plan.

I definitely would love to have a gorgeous swimming pool.

No wonder we feel like we never have enough time! Are you ready to have the home that you have been waiting for? 6 beds 4 baths 1 stories. U shaped house plans with courtyard pool. At monsterhouseplans.com we are dedicated to providing you with the best customer. All you need is a hint of ingenuity and smart planning. This project was originally featured in popular science magazine! House plans with swimming pool. Below are swimming pool house plans from our extensive home plan database. Modern house with vaulted ceiling in the living area. Platt small rustic home plan. This stunning pool from the joshua tree house, owned by sara and rich combs, shows that size has nothing to do with the relaxing benefits that come with a long and narrow pools like this are typically best suited for smaller outdoor areas. These smart house designs incorporate pools into the overall concepts, in many cases with side courtyards that the layouts wrap around for maximum inside/outside living.

By